Új,modern,kompakt,lakás a Remény projektben eladó.B1

565 Nyomtatás Ajánlás Facebook

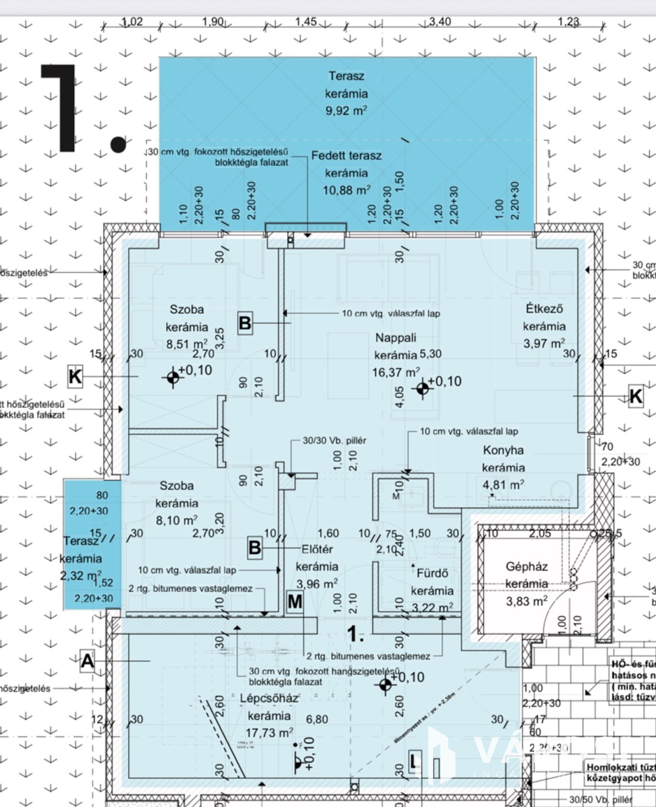
Új,modern,kompakt,lakás a Remény projektben eladó.
Az ingatlan,remek elhelyezkedéséből fakadóan,akár befektetők akár otthonteremtés céljából vásárlók számára is tökéletes döntés lehet,hiszen a belváros Dugonics téri szakasza percek alatt elérhető de az Árkád bevásárló központ is 7 perc séta távolságra található.A 48,95 négyzetméteres lakás földszinti elhelyezkedésű,belső kert-panorámás 23,16 négyzetméteres teraszokkal rendelkezik.tágas amerikai konyhás nappalival és csendes oldali hálószobákkal és mind két szobából kijárat nyílik a teraszokra.Extra lehetőségként említeném meg,hogy egyedül ehhez a lakáshoz vásárolható egy 3,83 négyzetméteres tároló,melynek ára külön megegyezés tárgyát képezi.Az ingatlan átadásakor,szerelvényekkel ellátott,festett és burkolt felületeket illetve,szaniterekkel kialakított fürdőszobát kap az új tulajdonos 1,5 M. forintos konyhabútor limittel,ami gyakorlatilag egyfajta szabadságot ad a lakás egyedivé formálásában.Az ingatlanhoz belső udvari parkoló/6.000.000.Ft/ és garázs/15.000.000.Ft/ is külön vásárolható.
Az ingatlannal kapcsolatban bármilyen kérdése lenne,keressen bizalommal:Laczkó Szabolcs +36707713137

Laczkó Szabolcs
PRÉMIUM

Laczkó Szabolcs

6 éve a Városi Ingatlaniroda tagja
Ingatlanértékesítő
Szeged
+36 (70) 771 3137
Észrevétel a hirdetéssel kapcsolatban
Egy ingatlanos naplója