Új építésű nagy családi ház tágas telekkel

3514 Nyomtatás Ajánlás Facebook

Eladó Új építésű Családi Ház Tereskén - Ideális Otthon Csendes Környezetben Panorámával

Álmodott már egy olyan otthonról, ahol a tágas terek, a prémium minőség és a természet közelsége találkozik? Most ez az álom valóra válhat! Eladásra kínálunk egy csodálatos, egy éve felépített családi házat Tereskén, amely minden elvárásának megfelel. Ez a nagy ház elsősorban nagycsaládoknak, kétgenerációs családoknak, vagy befektetőknek vendégház kialakítására lehet megfelelő az alábbi paraméterek miatt.

**Főbb jellemzők:**
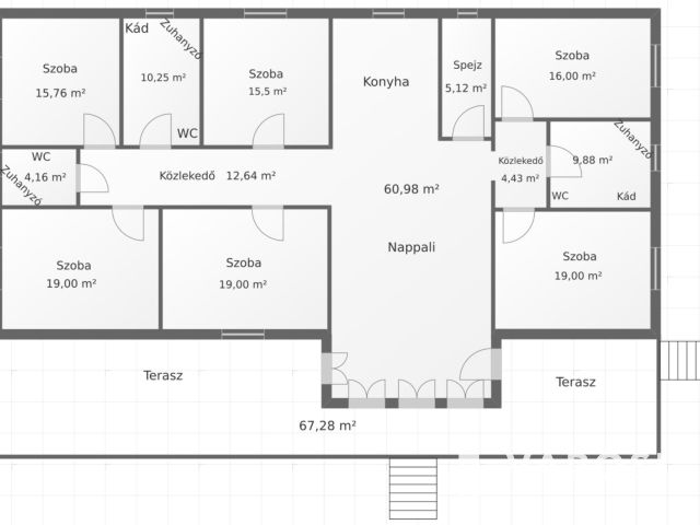
- **Lakótér:** 212 m²
- **Telekméret:** 2000 m²
- **Szobák száma:** 6
- **Nappali:** 1
- **Fürdőszobák:** 3
- **Terasz:** 67 m²
- **Beépíthető tetőtér:** 150 m²

Ez a gyönyörű ingatlan egy csendes utcában helyezkedik el, amelynek teraszáról varázslatos panoráma tárul elénk a Cserhátra és a szlovák hegyekre. A ház alacsony fenntartású, köszönhetően az új villamoshálózatnak a Porotherm téglának és a külső hőszigetelésnek.

Az amerikai konyhás nappali a modern életformát testesíti meg, és tökéletes helyszín a családi összejövetelekhez vagy baráti vacsorákhoz.

A padlófűtés és a klímaberendezés biztosítja a mindig ideális hőmérsékletet, míg az új nyílászárók és a beépíthető tetőtér további rugalmasságot nyújtanak. A szobákban radiátorok segítségével történik a hőleadás.

A házból kilépve egy varázslatos kert fogadja, ahol a terasz és a kertrész lehetőséget kínál a pihenésre és kikapcsolódásra a zöld övezet kellős közepén. Az udvari gépjárműbeálló lehetőség pedig kényelmes parkolást biztosít.

A falu Budapesttől 60 km, Váctól 27 km, Rétságtól 6 km és Balassagyarmattól 20 km-re található a 22-es számú főútvonal mellett 500 méterre. A település csendes, az átmenő forgalom elenyésző. Tömegközlekedés szempontjából kiváló az elhelyezkedése, naponta többször indulnak buszjáratok Budapest és Vác irányába, valamint Balassagyarmatra.
A faluban található általános iskola, óvoda, boltok, posta és orvosi rendelő. A település határában van a Tereskei-horgásztó. Munkahely bőségesen adatik a közelben a rétsági ipari parkban lévő gyárak számos munkalehetőséget biztosítanak.

Ha felkeltettük érdeklődését, vegye fel velünk a kapcsolatot és tekintse meg személyesen ezt a meseszép ingatlant! Ha pedig kedvező hitellehetőséget szeretne igénybe venni az ingatlan vásárláshoz, abban is tudunk segíteni!

Gréczi Péter
PRÉMIUM

Gréczi Péter

1 éve a Városi Ingatlaniroda tagja
Ingatlanértékesítő
Balassagyarmat
+36 (30) 439 8211
Észrevétel a hirdetéssel kapcsolatban
Egy ingatlanos naplója