SALGÓ CENTERBEN 110 nm üzlethelyiség kiadó!

18273 Nyomtatás Ajánlás Facebook

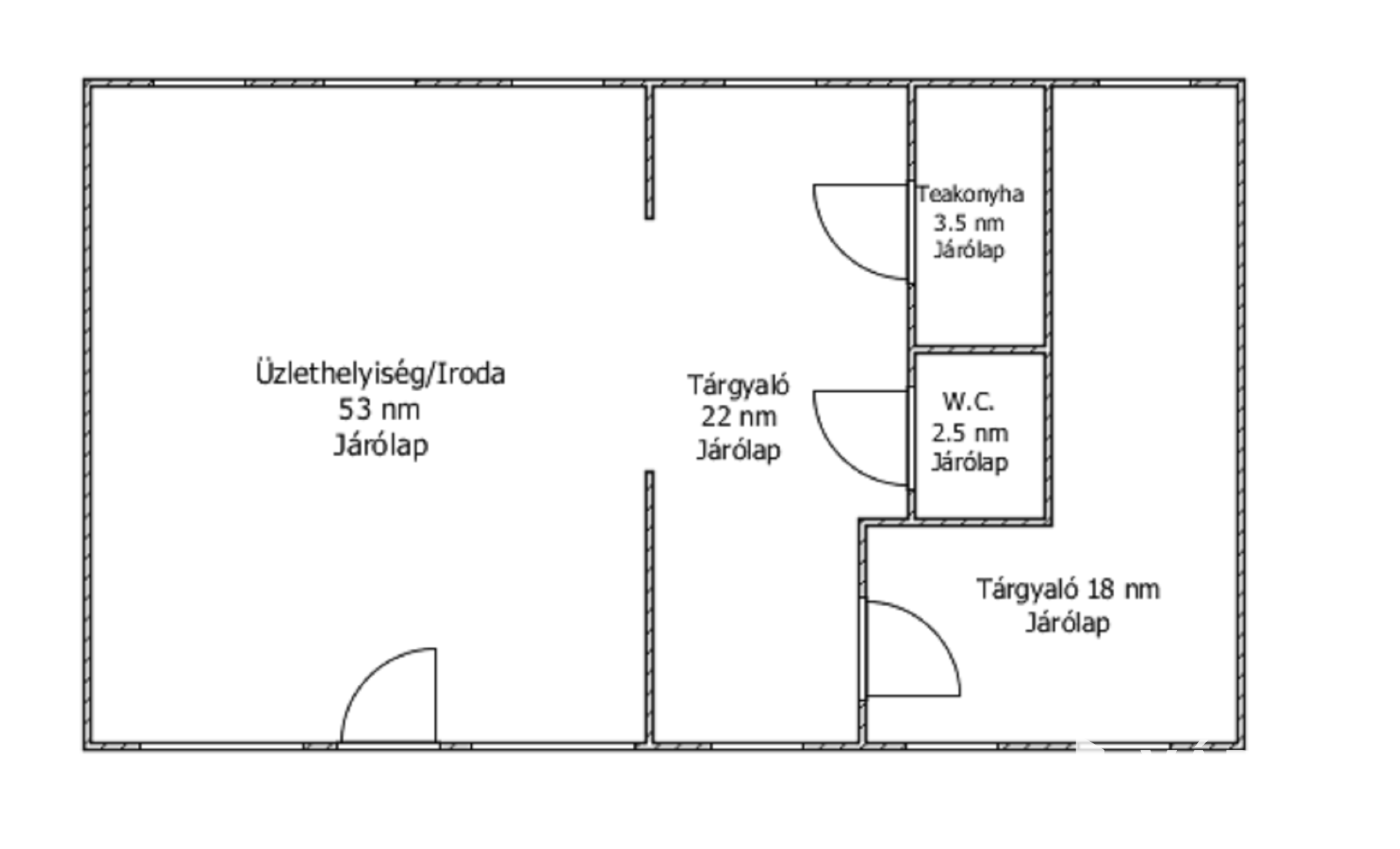
Nógrád megye, Salgótarján belvárosában, az SALGÓ CENTER Üzletház 1. emeletén, klimatizált, 100 nm-es üzlethelyiség kiadó!

Az ingatlan bármely kereskedelmi és szolgáltató tevékenységre alkalmas.

A helyiség alkalmas lehet irodaként történő használatra, hiszen jelenleg elszeparált tárgyaló, teakonyha és önálló vizesblokk található benne.

Az üzletház az idén csatlakozott a városi távhő rendszeréhez, ezáltal az üzemeltetési költség jelentősen csökkent.

Az üzletház korszerű, rendezett, jól megközelíthető, saját parkolóval és 24 órás portaszolgálattal rendelkezik.

A SALGÓ CENTER üzletház megújult arculattal, mozgólépcsővel, LED reklámfalakkal várja vásárlóit.

Tatár Tamás
PRÉMIUM

Tatár Tamás

8 éve a Városi Ingatlaniroda tagja
Régióigazgató
Salgótarján
+36 (70) 439 8123
Észrevétel a hirdetéssel kapcsolatban
Egy ingatlanos naplója