Penthouse a Hagymatikumtól 30 méterre 4

2435 Nyomtatás Ajánlás Facebook

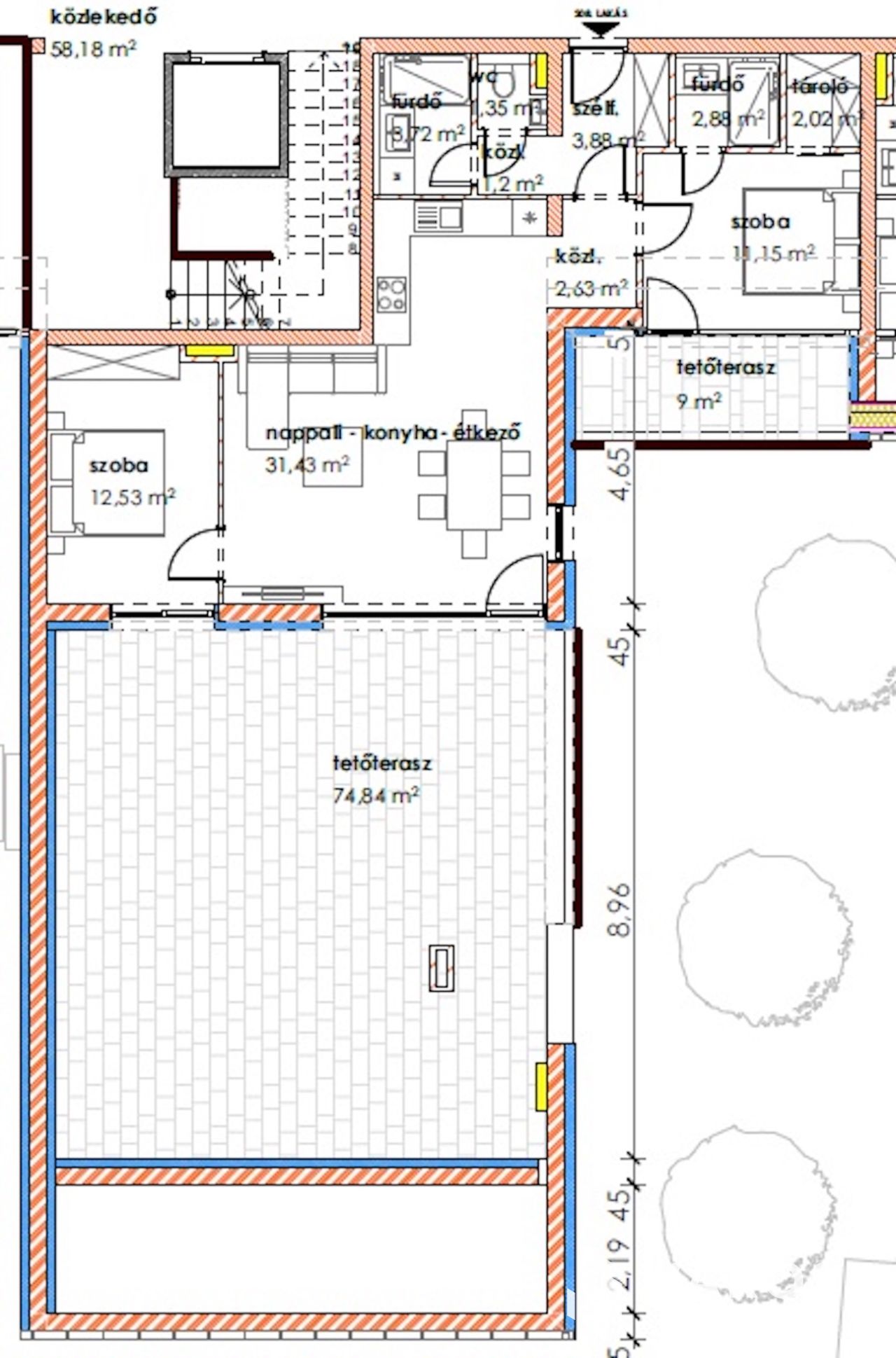
Makón, presztizs lokációval rendelkező - Makói fürdőtől 30 méterre - a Szent János téren - A Napfény Residenceben - , Eladó egy most induló, tégla építésű, MÁSODIK EMELETI , 119,21 nm-es élettérrel rendelkező, amerikai konyha nappali plusz kettő szobás, dupla fürdős, loggiás, 30 nm-es tetőteraszos 75 m2 -es lakás (208.lakás), liftes házban.
Udvari kocsibeálló külön vásárolható az ingatlanhoz.
Az ingatlan elhelyezkedésre, kialakítása miatt, maximálisan kiemeli ezt az ingatlant az átlagos lakások sorából és egyedülálló választássá teszi azt, befektetésre, vagy lakhatási célra is.
A feltűntetett ár emelt szerkezetkész ár (magas műszaki tartalommal) , a kivitelező vállalja kulcsrakész befejezést is.
A kivitelező több mint 10 éve működő tőkeerős cég.
Az ingatlanra CSOK plusz, otthon start, és más hiteltámogatás is igénybe vehető.
A társasház összes 46 lakásból - 2 épületben, 28 Szent János tér, 16 Páva utca - áll, valamint tégla falazattal, monolit födémmel, készül el.
A lakás fűtéséről központi hőszivattyús padló fűtés (egyedi méréssel), hűtéséről fan-coilos helyiségenkénti hűtés (egyedi méréssel) gondoskodik.
Fontos tény, hogy teljesen hétköznapi használat mellett is a rezsicsökkentés értékhatárai alatti a fogyasztás, így a rezsiköltség rendkívül alacsony.
A 1 db amerikai konyhás nappalival, 2db hálószobával, 2 db fürdőszobával, közlekedővel, loggiával, terasszal, zöld területtel rendelkezik.
A lakás délnyugati fekvésű, napfényes ingatlan.

A környék infrastruktúrája tökéletes, tömegközlekedés, Hagymatikum 1 percnyire az ingatlantól.

Helyiségei:
- amerikai konyha, nappali
- 2 szoba
- dupla fürdő
- közlekedő, előtér
- loggia
- terasz és zöld terület

A teljes (totál) műszaki tartalom rendelkezésre áll, valamint a helyszín megtekintése is rugalmas.

Várom megtisztelő hívását:
KÓKAI FERENC Városi Ingatlaniroda
+36 70 422 9777
Prémium ingatlanértékesítő
Szeged

Kókai Ferenc
PRÉMIUM

Kókai Ferenc

6 éve a Városi Ingatlaniroda tagja
Ingatlanértékesítő
Szeged
+36 (70) 422 9777
Észrevétel a hirdetéssel kapcsolatban
Egy ingatlanos naplója