Medencés kényelem, kertvárosi környezetben!

16834 Nyomtatás Ajánlás Facebook

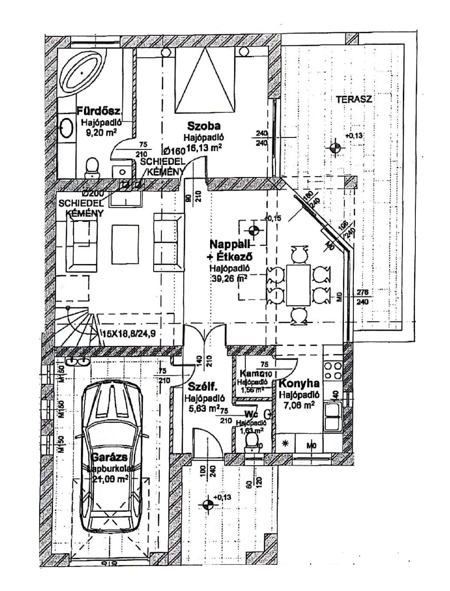
Szegedtől 10 percre, Hódmezővásárhely kedvelt Új- Kishomoki részén eladó, 2007-ben épült 140 m²-es kétszintes 3 szobás családi ház, medencével, parkosított udvarral.
Fontos paraméterek:
- 140 m2 lakótér
- Úszómedence
- Garázs
- új elektromos hálózat
- hőszigetelt nyílászárók
- padló és radiátor fűtés
- 2 db. hűtő-fűtő klíma
- kamera és riasztó rendszer
- elektromos kapu és garázskapu
- kerti grillező
- öntözőrendszer
- parkosított udvar

Az ingatlan kiváló elhelyezkedésű, folyamatosan karban tartott, 2023 - ban felújított, pár percre a bevásárló központtól, csendes utcában, a kertvárosi lét minden előnyével.

Amennyiben kérdése merült fel az ingatlannal kapcsolatban, további információkért hívjon bizalommal a 06/302490482 tel. számon.
dr. Vass Zoltán

k

Dr. Vass Zoltán
PRÉMIUM

Dr. Vass Zoltán

10 éve a Városi Ingatlaniroda tagja
Ingatlanértékesítő
Szeged
+36 (30) 249 0482
Észrevétel a hirdetéssel kapcsolatban
Egy ingatlanos naplója