Kulcsrakész, frissen felújított családi ház eladó!

6003 Nyomtatás Ajánlás Facebook

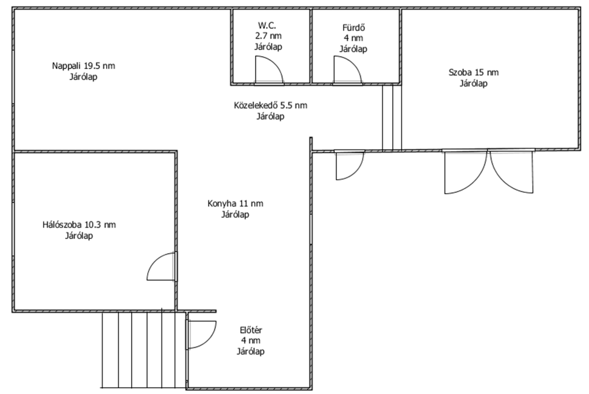
Salgótarjánban, csendes, nyugodt kertvárosi környezetben, kulcsra kész, frissen, teljes körűen felújított, 72 nm-es, tehermentes, azonnal birtokba vehető családi ház eladó!

Az ingatlan minőségi anyagok felhasználásával, funkcionális, modern stílusban került felújításra.

A felújítás során az alábbi munkák kerültek elvégzésre:

- új lemeztető 25cm padlás szigetelés
- 15cm homlokzati hőszigetelés
- új 2 rtg-ű műanyag nyílászárók
- padlófűtés kondenzációs gázkazán
- AUX delta hűtő fűtő klíma 3,5kw
- H tarifa a klímához
- új konyhabútor gépesítve
- álmennyezet 5cm hőszigeteléssel
- új padló burkolat
- új térkő burkolat alábetonozva 170 nm.

Helyiségei: előszoba, amerikai konyhás nappali, 2 hálószoba az egyik teraszkapcsolatos, fürdőszoba, W.C..

Az ingatlanhoz tartozó telek 1481nm-es, rendezett, részben térkövezett, körbekerített.

A városközpont 10, TESCO, LIDL, buszmegálló, iskola, óvoda 5 percen belül autóval elérhető.

Tatár Tamás
PRÉMIUM

Tatár Tamás

8 éve a Városi Ingatlaniroda tagja
Régióigazgató, ingatlanértékesítő
Salgótarján
+36 (70) 439 8123
Észrevétel a hirdetéssel kapcsolatban
Egy ingatlanos naplója